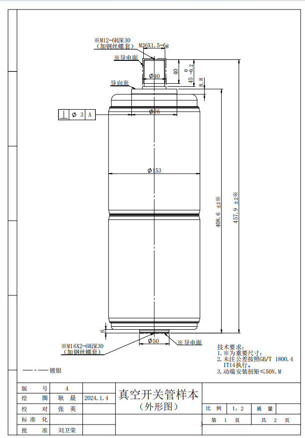
Vacuum Interrupter
Brief Technical Description
A vacuum interrupter is the core arc-extinguishing component of vacuum circuit breakers. It consists of a fixed contact, a moving contact, a ceramic or glass vacuum envelope, and shielding systems.
By utilizing the excellent arc-quenching performance of high vacuum, it rapidly extinguishes the electric arc generated during current interruption. It features high dielectric strength, low arc energy, a short arcing time, and maintenance-free operation.
It is widely used in indoor and outdoor high-voltage vacuum circuit breakers for switching and protecting distribution networks, transformers, and electrical equipment.


